Gru a ponte monotrave elettrica di tipo europeo a sollevamento europeo

Gru a ponte monotrave elettrica di tipo europeo a sollevamento europeo

La gru a ponte a trave singola europea è un macchinario di sollevamento compatto progettato e fabbricato in stretta conformità con lo standard FEM e DIN, che presenta una tecnologia avanzata e un design accattivante. Diviso in tipo generale e tipo di sospensione, che supporta l'uso di un paranco elettrico standard europeo, adatto per la movimentazione di materiali per officine e magazzini, assemblaggio di precisione di pezzi di grandi dimensioni e altri luoghi.
Chatta adesso

I dettagli del prodotto

Gru a ponte monotrave elettrica di tipo europeo a sollevamento europeo

Breve descrizione:

La gru a ponte a trave singola europea è un macchinario di sollevamento compatto progettato e fabbricato in stretta conformità con lo standard FEM e DIN, che presenta una tecnologia avanzata e un design accattivante. Diviso in tipo generale e tipo di sospensione, che supporta l'uso di un paranco elettrico standard europeo, adatto per la movimentazione di materiali per officine e magazzini, assemblaggio di precisione di pezzi di grandi dimensioni e altri luoghi.


image.png


Potrebbe essere ampiamente utilizzato nella produzione di macchinari, metallurgia, petrolio, pietrificazione, porto, ferrovia, aviazione civile, industria alimentare, fabbricazione di carta, edilizia, industrie di elettronica, magazzino e altre situazioni di movimentazione di materiali, in particolare. applicato alla movimentazione di materiali che richiedono un posizionamento preciso, componenti di grandi dimensioni e una precisa situazione di assemblaggio.


Single-girder Overhead Crane.png

Immagini dettagliate:

Single-girder Overhead Crane.png

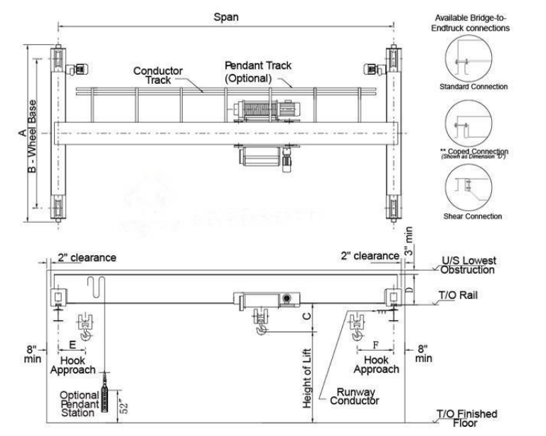
Disegno schizzo:

Single-girder Overhead Crane.png

Parametri tecnici:


campata

m

7.5

10.5

13.5

16,5

19.5

22.5

25.5

Capacità

t

1 ~ 12.5t

Peso totale

kg

1781 ~ 12086

Peso del carrello

kg

405 ~ 740

Max. Carico della ruota

kn

13.5 ~ 90.94

Rotaia di viaggio

P24 ~ P43

Velocità di sollevamento

m / min

0,8 / 5

0,8 / 5

0,8 / 5

0,8 / 5

0,8 / 5

0,8 / 5

0,8 / 5

Altezza di sollevamento

m

≥ 6

≥ 6

≥ 6

≥ 6

≥ 6

≥ 6

≥ 6

Potenza totale del motore

kW

4.31

4.31

4.31

4.31

4.67

4.67

4.67

Velocità della gru

m / min

3-30

3-30

3-30

3-30

3-30

3-30

3-30

Velocità del carrello

m / min

2-20

2-20

2-20

2-20

2-20

2-20

2-20

Dovere di lavoro

M5 / A5



包装运输.jpg

Inchiesta