Gru di sollevamento pesante, gru a cavalletto a doppio raggio 30 tonnellate

Gru di sollevamento pesante, gru a cavalletto a doppio raggio 30 tonnellate

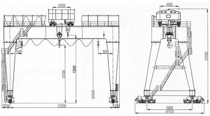
La gru a ponte a doppio raggio con ganci viene applicata lateralmente al di fuori del magazzino o della ferrovia per eseguire i comuni lavori di sollevamento e scarico. Questo tipo di gru è composta da ponte, gambe di supporto, organo di trasporto della gru, carrello con argano di sollevamento potente, equipaggiamento elettrico e sistema di controllo. Come il suo design pesante, può essere ampiamente utilizzato in tutti i tipi di campo industriale.
Chatta adesso

I dettagli del prodotto

gru per carichi pesanti, gru a portale a doppio raggio 30 ton


La gru a ponte a doppio raggio con ganci viene applicata lateralmente al di fuori del magazzino o della ferrovia per eseguire i comuni lavori di sollevamento e scarico. Questo tipo di gru è composta da ponte, gambe di supporto, organo di trasporto della gru, carrello con argano di sollevamento potente, equipaggiamento elettrico e sistema di controllo. Come il suo design pesante, può essere ampiamente utilizzato in tutti i tipi di campo industriale.

image.png

image.png

image.png

image.png

image.png


Inchiesta